Používame cookies

Súbory cookie a ďalšie technológie sledovania používame na zlepšenie vášho zážitku z prehliadania našich webových stránok, na to, aby sme vám zobrazovali prispôsobený obsah a cielené reklamy, na analýzu návštevnosti našich webových stránok a na pochopenie toho, odkiaľ naši návštevníci prichádzajú. Viac info

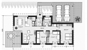
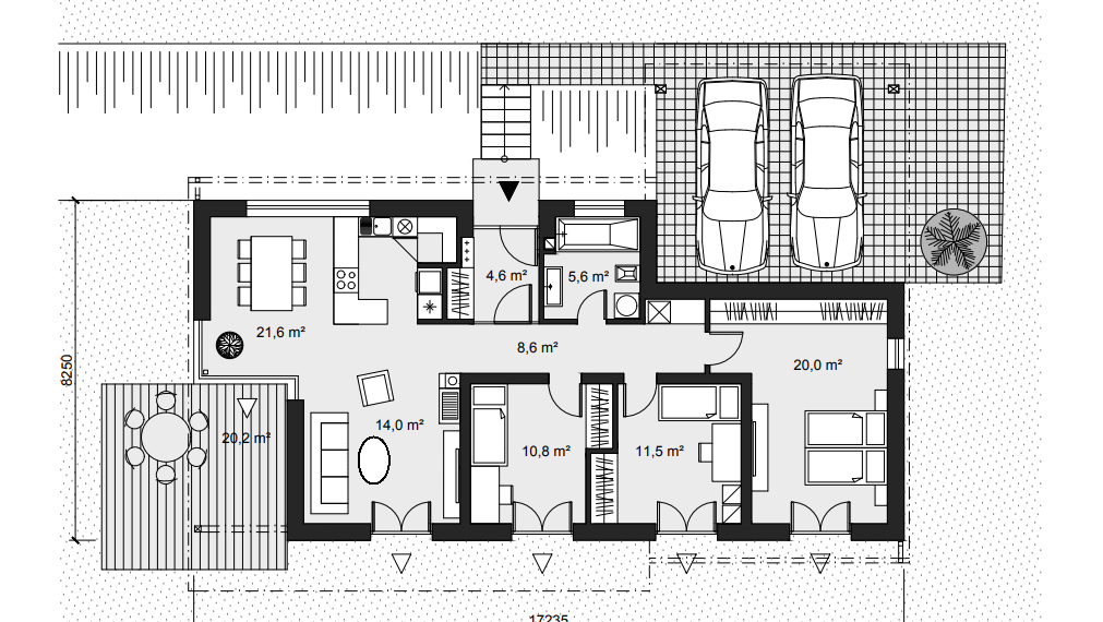
DOM ATYP

Kategória: Bungalov
Konštrukcia: Murovaný dom
Garáž: Nie
Počet izieb: 4
Počet kúpeľní: 1
Zastavaná plocha: 121.6 m2
Úžitková plocha: 96.81 m2

Radi Vám poradíme