Používame cookies

Súbory cookie a ďalšie technológie sledovania používame na zlepšenie vášho zážitku z prehliadania našich webových stránok, na to, aby sme vám zobrazovali prispôsobený obsah a cielené reklamy, na analýzu návštevnosti našich webových stránok a na pochopenie toho, odkiaľ naši návštevníci prichádzajú. Viac info

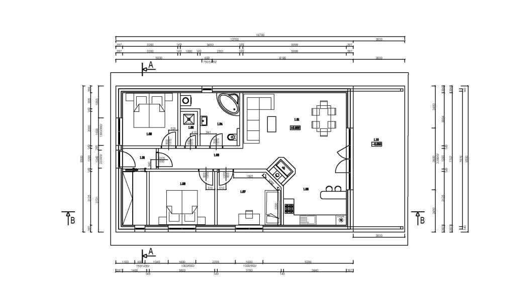
DOM ALEXANDER

Kategória: Poschodové
Konštrukcia: Drevodom
Garáž: Nie
Počet izieb: 4
Počet kúpeľní: 1
Zastavaná plocha: 118 m2
Úžitková plocha: 105 m2
Počet osôb: 4

Dom Alexander je 4-izbový netradičný rodinný dom väčšej veľkostnej kategórie bez garáže. Svojim priestorom je tento dom vhodný pre 4 osoby. Dom je vhodné postaviť do rovinatého, resp. mierne svahovitého terénu.

Tento nízkoenergetický rodinný dom vám vieme postaviť aj ako drevostavbu aj ako murovaný. Projekt je možné dodať aj zrkadlovo a po dohode spraviť aj úpravy v projekte podľa vašich predstáv.

Radi Vám poradíme