Používame cookies

Súbory cookie a ďalšie technológie sledovania používame na zlepšenie vášho zážitku z prehliadania našich webových stránok, na to, aby sme vám zobrazovali prispôsobený obsah a cielené reklamy, na analýzu návštevnosti našich webových stránok a na pochopenie toho, odkiaľ naši návštevníci prichádzajú. Viac info

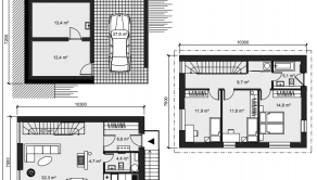
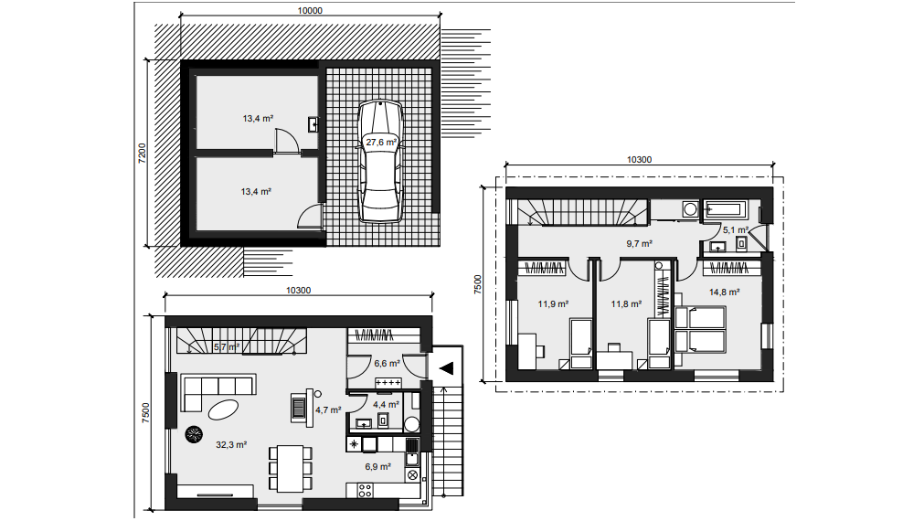
DOM ALL IN ONE

Kategória: Poschodové
Konštrukcia: Murovaný dom
Garáž: Nie
Počet izieb: 4
Zastavaná plocha: 76.5 m2
Úžitková plocha: 168.25 m2

Radi Vám poradíme