Používame cookies

Súbory cookie a ďalšie technológie sledovania používame na zlepšenie vášho zážitku z prehliadania našich webových stránok, na to, aby sme vám zobrazovali prispôsobený obsah a cielené reklamy, na analýzu návštevnosti našich webových stránok a na pochopenie toho, odkiaľ naši návštevníci prichádzajú. Viac info

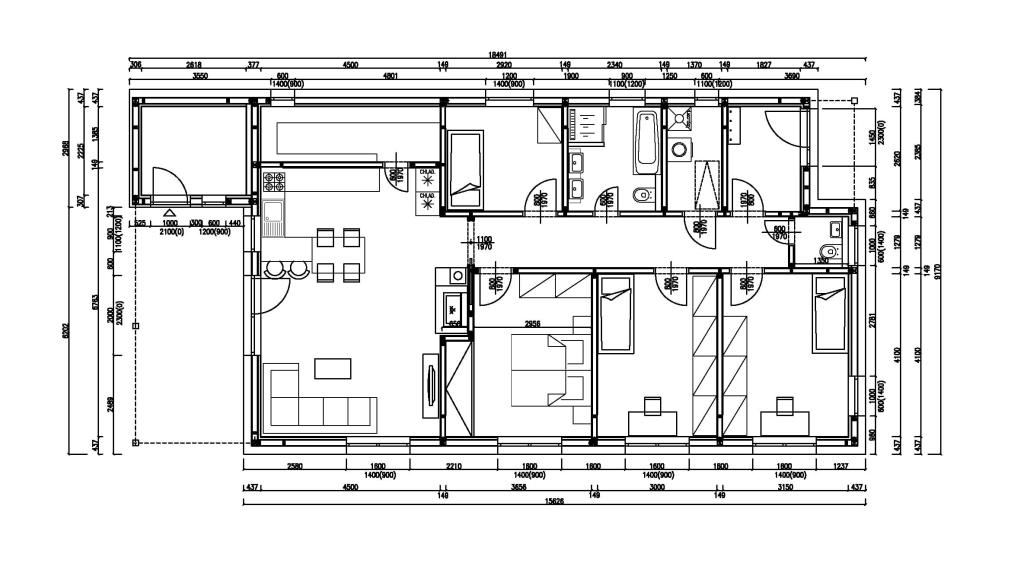
DOM MORA

Kategória: Bungalov
Konštrukcia: Drevodom
Garáž: Nie
Počet izieb: 5
Počet kúpeľní: 1
Zastavaná plocha: 137 m2
Úžitková plocha: 117 m2
Počet osôb: 5

Dom MORA je 5-izbový prízemný rodinný dom väčšej veľkostnej kategórie bez garáže. Svojim priestorom je tento dom vhodný pre 5 osôb. Dom je vhodné postaviť do rovinatého, resp. mierne svahovitého terénu.

Tento nízkoenergetický rodinný dom vám vieme postaviť aj ako drevostavbu aj ako murovaný. Projekt je možné dodať aj zrkadlovo a po dohode spraviť aj úpravy v projekte podľa vašich predstáv.

Radi Vám poradíme