Používame cookies

Súbory cookie a ďalšie technológie sledovania používame na zlepšenie vášho zážitku z prehliadania našich webových stránok, na to, aby sme vám zobrazovali prispôsobený obsah a cielené reklamy, na analýzu návštevnosti našich webových stránok a na pochopenie toho, odkiaľ naši návštevníci prichádzajú. Viac info

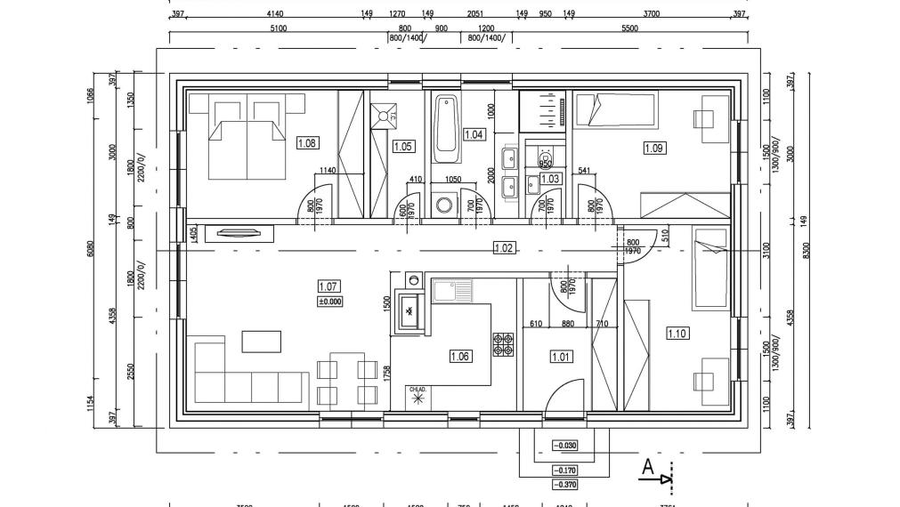
DOM ROBY

Kategória: Bungalov
Konštrukcia: Drevodom
Garáž: Nie
Počet izieb: 4
Počet kúpeľní: 1
Zastavaná plocha: 106 m2
Úžitková plocha: 94.4 m2
Počet osôb: 4

Dom ROBY je 4-izbový prízemný rodinný dom väčšej veľkostnej kategórie bez garáže. Svojim priestorom je tento dom vhodný pre 4 osoby. Dom je vhodné postaviť do rovinatého, resp. mierne svahovitého terénu.

Tento nízkoenergetický rodinný dom vám vieme postaviť aj ako drevostavbu aj ako murovaný. Projekt je možné dodať aj zrkadlovo a po dohode spraviť aj úpravy v projekte podľa vašich predstáv.

Radi Vám poradíme