Používame cookies

Súbory cookie a ďalšie technológie sledovania používame na zlepšenie vášho zážitku z prehliadania našich webových stránok, na to, aby sme vám zobrazovali prispôsobený obsah a cielené reklamy, na analýzu návštevnosti našich webových stránok a na pochopenie toho, odkiaľ naši návštevníci prichádzajú. Viac info

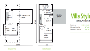
VILLA STYLE

Kategória: Bungalov
Konštrukcia: Drevodom
Garáž: Nie
Počet izieb: 5
Zastavaná plocha: 147.69 m2
Úžitková plocha: 173.82 m2

 

 

Rodinný poschodový dom vyššej kategórie ponúka priestranné a moderné bývanie vo veľkom štýle.Na prízemí sa nachádza denná časť, kuchyňa a jedálenský kút prepojený s obývacou izbou, priestranná kúpeľňa a pracovňa. V lete je skvele využiteľný priestor na terase. Na poschodí je oddychová časť s tromi izbami, kúpeľňou, šatníkom a stupom na pochôdznu strechu.

 

 

Radi Vám poradíme